KCFU高压限流熔断器组合保护装置
高压限流熔断器
正常时流过工作电流,发生短路时在1- 2ms之内快速熔断,实现截流。
KCFU与负荷开关组合时,FU本身所带的撞击器直接动作负荷开关,使其跳闸,避免缺相运行;
KCFU与断路器组合时,由FU所带的微动开关接点向断路器发出联跳命令;
KCFU为非整柜结构时,则由FU所带的微动开关接点发出动作信号。
非线性电阻
熔断器熔断时产生的弧压使其导通,吸收磁能,并把开断时的过电压限制在设备绝缘允许的范围以内。
高压限流熔断器组合保护装置的特点
快速性
可在短路故障发生后的1-2ms之内快速截流,2-4ms之内切除故障。三相电流持续时间不超过6-7ms。
可靠性
高压限流熔断器的熔断是靠其本身的物理特性决定的,不存在拒动和误动问题。
限流性
由于短路电流在上升的起始阶段即被强行截流,截流值仅为最大短路冲击电流的15-30%,大大提高了系统和设备的动稳定余度。同时由于I2t大大降低,使热稳定余度至少提高200倍以上。
开断能力强
开断电流可达160KA。
高压限流熔断器组合保护装置的应用
用于水电厂厂用变压器分支
对于水电厂来说,厂用电负荷比较小,而短路电流可高达上百千安,因此无法选到合适的断路器。当厂用变压器高压侧发生短路时,短路电流高达厂用变压器额定电流的上千倍,这将使厂用变压器遭到严重损坏甚至发生爆炸。
在厂用变压器高压侧加装KCFU后,可以带来如下好处:
1.?厂用变压器得到有效保护,避免因内部故障而发生爆炸事故;
2.?厂用分支短路,对于主变压器是穿越性故障。KCFU的快速动作,使最大短路冲击电流降低3-6倍,可避免主变压器因线圈变形而遭到损坏;
3.?KCFU快速切除厂用分支故障,可避免发电机长时间多次遭受强大的短路电流的冲击。
用于励磁变压器分支
励磁变压器内部故障时,短路电流将达到额定电流的一千倍以上,要靠发电机灭磁切除故障,短路电流持续时间长,不可避免地要造成励磁变压器的严重损坏甚至爆炸。
而且,励磁变低压侧整流桥故障时,由于切除故障时间过长,将会扩大设备损坏程度,大大延长机组修复时间。

在励磁变压器高压侧加装KCFU后,可带来如下好处:
1.有效地保护励磁变压器,避免因内部故障而发生爆炸事故;
2.励磁变压器分支短路时,可由KCFU快速切除故障使最大短路冲击电流降低3-6倍,避免主变压器因线圈变形而损坏;
3.整流桥故障,可在20-40ms快速切除故障,减少事故损失,缩短事故停机时间
4.可避免励磁变压器故障造成的发电机长时间多次遭受大电流的冲击。
高压限流熔断器组合保护装置结构/配置
配负荷开关结构
用于额定电流不大于125A的水电厂厂用变压器分支。
FU所带的撞击机构可直接跳开负荷开关,避免长时间缺相运行。
配真空断路器结构
用于额定电流不大于250A的厂用变压器分支。
由FU所带的微动开关接点联跳真空断路器并发出KCFU装置动作信号。
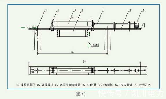
非整柜结构
主要用于励磁变压器高压侧或用于厂用变压器分支而现场设备布置较困难的场所。
由FU所带的微动开关接点可发出装置动作信号,若安装在厂用变压器高压侧,则同时可发出联跳断路器命令。
文章来源:《高压物理学报》 网址: http://www.gywlxbzz.cn/zonghexinwen/2022/0121/660.html